Delavniško dvigalo Autopstenhoj Maestro 2.35 NxT
Dvosteberno elektro-mehansko dvigalo za servisiranje osebnih in manjših dostavnih vozil
Namen
Korist
- Visoka stopnja varnosti pri uporabi dvigala
- Stablina robustna konstrukcija
- Dvigalo narejeno iz visokvalitetnega jekla
- Stebri dvigala varjeni iz štirih cevi
- Kovinski ležaji vozička dvigala
- Brez talne povezave
- Notranje vležajenje rok dvigala – zaprt sistema notranjega ozobja
- Nizka minimalna višina
- Dva motorja – elektronska sinhronizacija
- Asimetrična konstrukcija – velik kot odprtja vrat vozila
- Hladno valjano navojno vreteno in kvalitetne nylon matice
- Izjemno dolga življenjska doba
- Zagotovljeni rezervni deli, avtoriziran servis in vzdrževanje dvigala
- Nizki stroški uporabe dvigala
Dvostebrno dvigalo Autopstenhoj Maestro 2.35 NxT
– nosilnost 3500 kg

Galerija slik za Autopstenhoj Maestro 2.35 NxT
- primeri namestitve dvigala
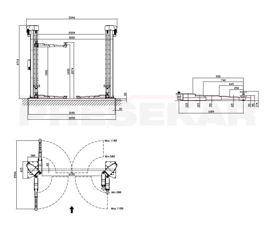
Autopstenhoj Maestro 2.35 NxT dvosteberno dvigalo za avtomehanične delavnice – nosilnost 3500 kg
Dvosteberno elektro mehansko dvigalo nove generacije z oznako NxT z rokami izvedbe spredaj DT (586 - 1189 mm) ter zadaj ST (927- 1551 mm) je primerno za servisiranje osebnih vozil. Dvigalo je asimetrične izvedbe, zato omogoča večji kot odprtja vrat vozila. Nosilnost 3500 kg. Dvigalo ima dva elektro motorja (2 × 2,8 kW) ter elektronsko sinhronizacijo dviga, dvigalo je brez talne povezave, dvigalo ima hladno valjani vreteni in matice iz posebne visoko odporne zlitine, ki zagotavlja dolgo življenjsko dobo in izjemno nizke stroške vzdrževanja in obratovanja.
Značilnost Autopstenhoj dvigal so izjemno močni in stabilni ter hkrati vitki stebri.
Izvedbe Autopstenhoj dvigal z oznako 2.XX imajo unikatne stebre varjene iz štirih cevi ter voziček vležajene s kovinskimi ležaji.
Dvigalo je možno naročiti z različnimi izvedbami rok.
Dvigalo je primerno tudi za varno dvigovanje električnih vozil.
Izjemno kvalitetna gradnja dvigala omogoča dolgo življenjsko dobo in minimalne stroške za vzdrževanje takšnega dvigala.
Tovarna Stenhoj je leta 2017 praznovala svojo 100 letnico in je najstarejši proizvajalec dvigal na svetu.
Podjetje PRESEKAR, Servisna oprema, d.o.o. je Autopstenhoj Cerfied Sales and Service Partner
https://www.presekar.eu/Delavniska_dvigala.html
V kolikor potrebujete ponudbo ali dodatne informacije Vas vljudno prosim, da posredujete vaša vprašanja na elektronski naslov: prodaja@presekar.com
Perfect Garage Equipment – Use Only the Best.
Video za Autopstenhoj Maestro 2.35 NxT
Tehnični podatki za Autopstenhoj Maestro 2.35 NxT

Ugodnost nakupa



"Povej naprej"
Vam je zanimivo?
Bolj podrobno, ko opišete svoje želje, bolj optimalno rešitev lahko najdemo.
Cena, kalkulacija ...
Cena je lahko odvisna od veliko dejavnikov. Izračun lahko traja tudi nekaj ur, zato ga zaračunamo. Hvala za razumevanje.






















































